建造師
一級建造師 二級建造師
本文將介紹建筑圖紙的種類及作用,幫助讀者更好地了解建筑圖紙#xF30D建筑總平面圖建筑總平面圖用以表達建筑物的地理位置和周圍環境,是新建...
1、正方形面積和是a#178+b#178=2a+b2+2a+4b9 a#178+b#178=4a+6b13 a#1784a+4+b#17...
第二章施工管理組織機構針對本標段的工程特點,便于分項工程的順利進行,設立項目經理部來完成本工程的施工任務一施工組織管理機構二項目部管理人...
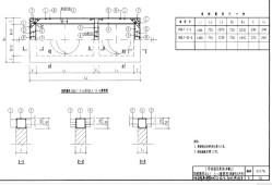
城市排水系統對于一個城市來說是非常重要的,雖然平時我們注意不到它,但是一到大雨,它的作用就體現了出來。日本擁有著世界上最宏偉的城市排...
CAD正負符號1文字編輯時,正負符號即輸入%%P2標注正負符號輸入命令D回車,如圖修改標注樣式。 其實可以任意,如下圖4指定文字高度,設...
在近日北京中關村舉辦的“尖兵之翼——中國無人機大會暨展覽會”上,著名無人機作戰研究專家、解放軍空軍工程大學航天航空工程學院教授黃長強...
其實安裝天正任何一款專業軟件都會自動安裝插件,只要你的電腦上面有AutoCAD,按住插件會自動把功能加載到AutoCAD里面,打開圖紙就...
據了解,山東廣大農村的“標準廁所”可能會使用四大模式:在城鎮污水管網覆蓋到的村莊和農村新型社區,推廣使用水沖式廁所;在一般農村地區,...
1、快速關斷閥概述快速關斷閥是熱電廠機組安全系統的重要組成部分,是保證抽汽機組安全運行防止抽汽管道蒸汽倒流引起汽輪機超速事故的重要安全設...
1、fx5800P 的屏幕最多可以顯示4 行16 列字符,因此定位語句中的列數值應為大于等于1小于等于16 的整數,行數值應為大于等于1...
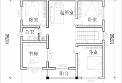
新農村自建房有些需求與過去不一樣了,最重要的變化有三點,說的不對請大家批評指正。第一就是入戶車庫,現在汽車已經普及,尤其是南方農村一...
現代主義風格體現的是一種簡約之美,現代風格的庭院設計最適宜建造在現代主義風格或20世紀末建成的建筑的周圍。任何建筑,只要不是很典型的...
結構底部加強,就是結構的底部,是指結構比較薄弱的地方,需要在構造上予以增強,一般采用極大截面尺寸和提高混凝土強度等級以及加密或加大鋼筋等...
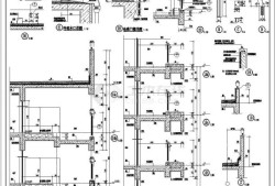
建筑施工圖是只包括所有建筑完成后的外輪廓圖,結構施工圖只包括結構構件,即只有承重構件,即承重墻梁板柱和配筋圖兩者的區別很明顯,比如有時建...
在客廳中設計一道木地板裝修,為家居帶來溫馨的氛圍,下面就跟著我一起來看看木地板客廳裝修效果圖,希望大家喜歡#xF333大自然氣息圖中這個...
1、建筑模型論壇不僅是一個可以分享模型設計經驗和技巧的平臺,更是一個可以促進設計師們創意交流和思想碰撞的社區在論壇中,設計師們可以相互學...