臥室立面圖,臥室立面圖英文
建筑平面圖標注的尺寸有外部尺寸和內部尺寸1外部尺寸 在水平方向和豎直方向各標注三道最外一道尺寸標注房屋水平方向的總長總寬稱為總尺寸中間一道尺寸標注房屋的開間進深,稱為軸線尺寸注一般情況下兩橫墻之間的距離稱為“開間”兩縱墻之間的距離稱為“進深”2內部尺寸 應。
用CAD首先要繪制出室內平面圖其次是室內改墻圖當然如果需要改的話室內鋪裝圖室內家居布置圖室內面積室內天花布置圖室內開關布置圖室內水電路走向圖等等~然后就是立面圖,一般繪制的有客廳電視墻背景圖客廳沙發墻背景圖餐廳立面圖主臥室電視墻立面圖背景墻立面圖廚房櫥柜圖。

一般的業主都認為效果圖很重要,要看到效果才能知道裝修的好不好,其實也對,但是太過于片面裝修公司一般在裝修時會出一套完整的圖紙,包括施工圖水電布局圖立面圖等等一系列的圖紙,這些圖紙在裝修過程中也是至關重要的,絕對不能忽略那么具體內容包括什么呢,小編馬上告訴您原始建筑測量圖包括房。
理論上是每一面都要繪制的但在實際繪圖時,如果一面墻上真的什么都沒有,就不用畫但如果在設計時墻上有掛畫鏡子等東西時,就需要進行繪制了。
出至少6張圖2號第一張是說明2個單元,5層,可以一梯2戶,戶型面積70110,兩個單元可以一樣也可不一樣80平可做成兩室兩廳,100平可做成三室二廳廚衛節點圖一般比例為150,戶型大樣圖要畫上廚衛潔具位置尺寸。
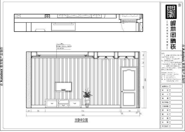
室內立面圖它影響了整體的裝修和造型,在設計里面里它是研究藝術的,在施工里面,它主要反應房屋的外貌臥室立面圖是施工里最常見的一種圖,臥室圖是用來表示室內的樣子,使大家在裝修房子的時候提供許多幫助,畢竟大多數人不是太明白,不是很了解,自己的家好不好,舒服不舒服,就取決于臥室立面圖。
下面這張圖是這間房子的立面圖,因為不知道你門窗方向,所以按正常戶型來做的這樣的小臥室還是做榻榻米更合適,因為榻榻米相對來說比較省空間,而且,你要做類似我這樣的榻榻米才行,因為寬度太低,不能在床上再做衣柜,儲物要在吊柜和進門處做才行,因為不知道是什么人住,但為了居住方便,還是。
首先,平面布置圖平面布置圖是裝修設計的重要一環,包括客廳臥室廚房衛生間走廊等不同區域的布置和空間分割這張圖最重要的作用就是幫助你在整體思考下如何進行家居擺設,與施工隊溝通布線方案裝修小白必備裝修指南,請關注公眾號#新房裝修流程步驟想知道更多裝修知識干貨,請關注。
關于住宅設計方面有以下幾點建議1門廳設計兼顧潔污分區視線遮擋家具設置美化裝飾等等2起居室的面寬寬容度較大,可根據總面積要求酌情加減3主臥室的面寬宜適當增加4次臥室的功能性質多變,應多角度考慮確定面積和位置5書房靈活設計應予以注重,盡量使其成為客戶裝修時的個性體現空間6。
通過輸入空間的尺寸和比例,軟件可以自動生成相應的平面布局圖和立面圖,幫助我們直觀地了解空間的大小和形狀例如,當我們設計一個臥室時,軟件可以根據房間的尺寸,自動生成臥室的平面布局圖和立面圖,幫助我們判斷房間是否夠大,是否適合放置床衣柜和書桌等家具此外,室內空間快速制圖還可以幫助我們優化。
1看空間劃分是否合理首先要找出圖中的墻體部分,從面確定各房間的位置,然后與居室的各房間一一對號,獲得一個直觀的印象如果圖中所示與實際情況不一致,則說明設計中對墻體結構進行了改動,對空間重新進行了功能劃分這時,您就要檢查這樣的空間劃分是否合理,自己對這樣的改動是否滿意2。
室內裝飾裝修立面圖一般是以投影方向命名的,其投影方向編號應與平面布置圖上內視符號一致,如“A立面圖”“B立面圖”等裝飾裝修立面圖的命名方法還可以用房間東西南北立面坐落方向命名,如“主臥室南立面圖”也可用房間主要立面裝飾構件的名稱命名,如“主臥室電視背景墻立面圖”。
免責聲明: 本站提供的任何內容版權均屬于相關版權人和權利人,如有侵犯你的版權。 請來信指出,我們將于第一時間刪除! 所有資源均由免費公共網絡整理而來,僅供學習和研究使用。請勿公開發表或 用于商業用途和盈利用途。
本文鏈接:http://m.366700.com/ziyuan/25937.html
發表評論