化糞池的圖集化糞池圖紙
由你拍的應該是集成一體式化糞池,我沒有見到藍圖,但是結合我二十年的施工經驗看確實是有問題的陜西或者北方地區包括青海甘肅北京新疆內蒙古等省公司都有項目,最近的化糞池施工我見到了幾個圖紙基本如下自建一體式。
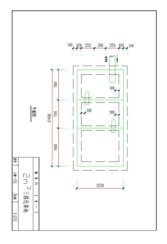
G1150SQF11號鋼筋混凝土化糞池,有地下水,頂蓋過車,池頂覆土標準圖集03S702 鋼筋混凝土化糞池。
3根據設計溶解周期和最大容積計算出每周期內的溶糞量例如,如果設計溶解周期為5天,化糞池最大容積為10立方米,那么每個周期內的溶糞量就是10立方米5天=2立方米天4在圖紙上使用文本框或其他注釋工具添加標注。
12S8 排水工程,247頁如下,9#化糞池有效容積80立方,滿意請點一下采納。

化糞池在圖紙上圖標用符號HC表示化糞池huàfènchí是處理糞便并加以過濾沉淀的設備其原理是固化物在池底分解,上層的水化物體,進入管道流走,防止了管道堵塞,給固化物體糞便等垃圾有充足的時間水解 化糞池。
1首先根據圖紙設計化糞池的容量,同時確定化糞池組數和組合方式2下面是定位放線開挖基坑土方時,必須做好邊坡支護對于地下水豐富或雨季施工的地區,可在坑底設置集水坑和污水泵,及時排出坑內積水,保證化糞池底座下的。
化糞池施工主要包括土方挖填,化糞池進排水管道等依據先地下后地上的原則從下往上逐層安排施工,施工時先從化糞池基礎,后開始化糞池結構地下管線施工化糞池為埋在地下工程根據設計圖紙鋼筋砼施工分二次澆搗施工。
免責聲明: 本站提供的任何內容版權均屬于相關版權人和權利人,如有侵犯你的版權。 請來信指出,我們將于第一時間刪除! 所有資源均由免費公共網絡整理而來,僅供學習和研究使用。請勿公開發表或 用于商業用途和盈利用途。
本文鏈接:http://m.366700.com/ziyuan/20324.html
發表評論