室內裝修圖紙字母和符號什么意思室內裝修圖紙
天花吊頂布置圖是天花吊頂裝修項目中最重要的圖紙之一它要求標明天花造型的尺寸定位燈具位置及詳圖索引,并應標注天花底面相對于本層地面建筑面層的高度,同時還要注全各房間的名稱4地面材質圖 地面材質圖,顧名思義是;室內裝修的圖紙方面需要四類圖紙施工方案圖施工平面圖各立面圖水電施工圖1施工方案圖在施工前設計師根據客戶要求,出的一套具體實施方案包括設計圖紙和措施時間尺寸等等2施工平面圖施工平面圖是施;但是現在的家裝裝飾行業大都不是很規范,你畫的施工圖大多是拿來給客戶和工人看的也沒有公裝那么嚴格的審查圖紙,所以用圖紙表達你的設計思路才是施工圖的第一要務建議你要多去工地看看,家裝的施工很簡單,需要畫施工;封面,設計說明,目錄,電路系統圖,原始建筑圖,平面布置圖,拆墻圖,砌墻圖,地面鋪設圖,天花布置圖,燈具連線圖,開關圖,插座圖,水路圖,家具尺寸圖大致就是這些了。

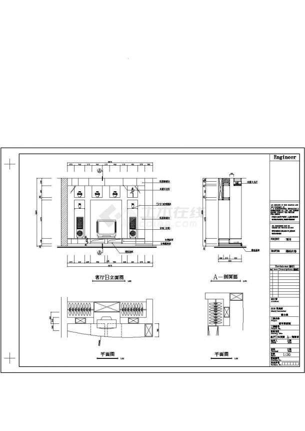
天花吊頂布置圖是天花吊頂裝修項目中最重要的圖紙之一它要求標明天花造型的尺寸定位燈具位置及詳圖索引,并應標注天花底面相對于本層地面建筑面層的高度,同時還要注全各房間的名稱4建筑改建平面圖 建筑改建平面圖是根據;識別室內裝修圖紙符號必須學會基礎的繪畫技巧和知識識別室內裝修圖紙符號操作如下1必須學習基本的繪畫技巧和繪畫知識,真正理解正投影和側投影時,就能徹底理解圖紙中的建筑規劃2學習透視原理,以及建筑圖紙的繪畫技巧;施工圖是裝修得以進行的依據,具體指導每個工種,工序的施工施工圖把結構要求材料構成及施工的工藝技術要求等用圖紙的形式交待給施工人員,以便準確順利地組織和完成工程施工圖包括立面圖剖面圖和節點圖施工立面圖是;1圖紙目錄包含哪些圖紙,及圖紙頁碼2設計說明房屋基本情況介紹及計師是怎么設計的3原始平面圖詳細標注室內尺寸,門窗梁柱進水口地漏煤氣管道位置等等4平面設計圖不解釋,正常人都懂5天花吊。

問題九室內裝修施工圖紙怎么看 盡管我們對裝修圖紙一竅不通,但還是有這個需要去了解一下的,裝修圖紙是家居裝修施工的基礎,它掌握的可是你新房的“命脈”,家居的面積測量電線分布等,無不是從這張圖紙所指揮的,對圖紙感到困惑的朋友;包括八種圖紙要裝修,找滬佳1原始平面圖房子最初的結構草圖,一般裝修公司在量房時,就會畫上這樣一張圖紙,主要是為了了解房子的大小布局各方面尺寸等,還需要標注好承重墻位置墻體厚度層高等2平面;臥室一般地面都是地板,衛生間是拋光裝,室內裝修的圖紙主要的是平面布置圖,吊頂布置圖,電視背景墻里面圖等,要注意圖紙各房間標高,吊頂標高,燈槽帶,以及電視背景特出藝術造型的表達要如何看懂cad圖紙就要多了解室內裝修;根據功能不同,裝修圖紙包括平面圖立面圖節點圖細部圖等等每種圖紙都有其獨特的用途和特點,因此在設計和施工過程中都是必不可少的同時,酷家樂作為一款專業的家居設計軟件,也能夠在很大程度上幫助用戶快速制作各種;\r\n \r\n \r\n\r\n一室內裝修圖紙怎么看懂\r\n \r\n\r\n1了解正投影及側投影,這樣才能明白圖紙中的建筑規劃2熟知透視圖原理,并掌握建筑施工圖的繪畫技巧3看圖紙之前,先要看設計說明,在根據標準。
室內裝修圖紙顧名思義就是施工圖了,不是方案階段的圖紙施工圖包括封面,目錄,設計說明常含施工說明及施工做法表,材料表,五金潔具表,燈具表,門窗表,總面平面圖,家具圖,隔墻類型尺寸圖,天花圖lt天花尺寸;5地面鋪裝圖地面材料及鋪設規范6強電布置圖冰箱,空調等強電流線路走向布置7弱電布置圖燈具,電話,網絡燈線路走向布置8開關插座圖開關及插座的詳細布置圖9立面圖 若干張, 其中必畫的有,廚房立面,衛生間立面。
室內裝修的圖紙方面需要四類圖紙施工方案圖施工平面圖各立面圖水電施工圖施工方案圖在施工前,設計師根據客戶要求,出的一套具體實施方案包括設計圖紙和措施時間尺寸等等施工平面圖施工平面圖是施過程。
免責聲明: 本站提供的任何內容版權均屬于相關版權人和權利人,如有侵犯你的版權。 請來信指出,我們將于第一時間刪除! 所有資源均由免費公共網絡整理而來,僅供學習和研究使用。請勿公開發表或 用于商業用途和盈利用途。
本文鏈接:http://m.366700.com/ziyuan/14645.html
發表評論